Eladó Családi ház, Szolnok

#697200483

Eladó Családi ház

95.5 millió Ft

Szolnok Szandaszőlős
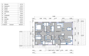
Alapterület:
123 m2
Szobák száma:
3
Állapot:
Új építésű
Építési mód:
nincs megadva

Kérjen személyes bemutatást!
Adja meg adatait, és hogy mikor érne rá!

Az Adatkezelési tájékoztatót elolvastam és elfogadom.

Megfelelő időpontok

Hétköznap délelőtt
Hétköznap délután
Hétköznap este
Hétvégén délelőtt
Hétvégén délután
Hétvégén este
Kérés elküldése
714 m2
Vezeték a telek előtt
Vízvezeték a telek előtt
Gázvezeték a telek előtt

Új építésű családi ház Szandaszőlősön

Új építésű, önálló kerámia családi ház Szandaszőlősön

 

MIÉRT KERÁMIAHÁZAK? ….. MERT ESZTÉTIKUSAK?

IGEN AZOK IS, DE NEM EZ A LEGFŐBB SZEMPONT!

TELJESÍTJÜK A 25%.-BAN MEGÚJULÓ ENERGIA IGÉNYT!
H-TARIFÁS  FŰTÉSI-HŰTÉSI ÉS MELEGVÍZ ELÖÁLLITÁSI RENDSZERREL HASZNÁLHATÓ!


ELSŐOSZTÁLYÚ – EGÉSZSÉGES – ENERGIATAKARÉKOS

AZ ÉPÍTKEZÉSRE FORDÍTOTT IDŐ RÖVIDEBB.

 

Új építésű önálló családi ház ( 80,1 millió Ft + 15 millió Ft telek ),tervezési szinten, különböző méretben, garázzsal, vagy anélkül eladó.

A 714 m2-es önálló telken. Közművek az aszfaltos úton a telek előtt.

 

A típusházaink ára a tervezés költségét tartalmazzák, amennyiben változtatás nélkül kérik a megrendelőink. Műszaki tartalmat érintő, illetve egyéb módosítást igénylő kérdésekkel kérjük, hogy lépjenek velünk kapcsolatba.

 

A környék csendes, jól frekventált, pár percre a központ (buszmegálló, bolt, posta, általános iskola, óvoda, bölcsöde...).

 

https://www.perfektotthonok.hu/muszaki-tartalom-keramiahaz/

 

Igyekszünk minden igényt kielégíteni, az energiatakarékos üzemeltetés és a
megújuló energia felhasználása központi fontosságú számunkra.

 

Ez egy ÖKO ház.
Anyaga könnyű beton kerámia kompozit. Kész ház. DE NEM KÖNNYŰSZERKEZETES! 


Csak HIPOALLERGÉN, természetes anyagokat használnak.


Semmilyen káros anyag kibocsátása nincs, megújuló energiát használ,
gyakorlatilag a megrendeléstől számított 6-7 hónapon belül költözhető.

 

 

Kérdése van?
Adja meg adatait és felhívjuk!

Az Adatkezelési tájékoztatót elolvastam és elfogadom.
Üzenet küldése